概要
OUTLINE
- 住所
- 下関市山の田北町1番
- 最寄り交通
- 北町1丁バス停まで徒歩4分
(建物出入口より270m)
山の田バス停まで徒歩4分
(建物出入口より300m) - 学校区
- 市立山の田小学校 / 市立山の田中学校
- 駐車場
- 1戸に1台(800円/月)
- 共益費
- 共用施設維持管理に必要な経費、自治会費
- 敷金
- 当初家賃の3ヶ月分 ※礼金:無
- 棟数
- 13
- 竣工年度
- 1997(H09)
- 構造等
- 高層耐火構造7階建・エレベータ有
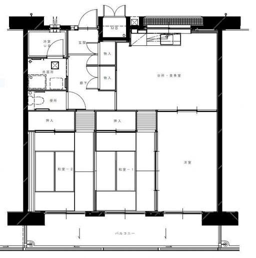
- 住戸面積
- 53.3㎡ 69.7㎡ 70.4㎡
- 間取り
- 2DK 3LDK 3LDK
- 戸数
- 6戸 18戸 6戸
- 家賃
- 18,700円~24,700円 24,500円~32,300円 24,700円~32,700円
- 改良住宅とは、住宅地区改良法(1960年(昭和35年)以降)により建設された住宅のことです。
- 入居予定者全員の総所得金額(過去1年間における所得税法によって算出した所得額)から扶養控除(同居親族1人につき38万円)等を控除した額を12で割った額(所得月額)が、一般の世帯であれば11万4千円以下であること、高齢者や身体障害者のいる世帯等では13万9千円以下であることが条件です。

