概要
OUTLINE
- 住所
- 下関市横野町1丁目12番5号
- 最寄り交通
- 横野橋バス停まで徒歩1分
(建物エントランスより53m)
JR安岡駅まで徒歩9分
(建物エントランスより700m) - 学校区
- 市立安岡小学校 / 市立安岡中学校
- 駐車場
- 1戸に1台まで
- 共益費
- 共用施設維持管理に必要な経費、自治会費
- 敷金
- 家賃の3ヶ月分
- 竣工年度
- 1987
- 構造等
- 高層6階建・エレベータ有
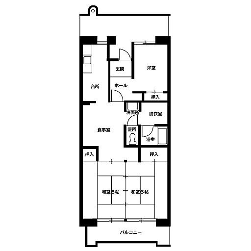
- 住戸面積
- 59.7㎡
- 間取り
- 3DK
- 戸数
- 30戸
- 県営住宅に「礼金制度」はありません。
- 入居後、収入が基準を超過したり、収入報告をされない場合、近傍同種家賃(=近隣の民間住宅並み家賃)をお支払いいただきます。高額所得者に認定された場合は住宅を明け渡していただきます。

