概要
OUTLINE
- 住所
- 下関市彦島江の浦町3丁目15番
- 最寄り交通
- 杉田バス停まで徒歩4分
(建物エントランスから250m~300m) - 学校区
- 市立江浦小学校 / 市立彦島中学校
- 駐車場
- 1戸に1台まで(500円/月)
- 共益費
- 共用施設維持管理に必要な経費、自治会費
- 敷金
- 家賃の3ヶ月分
- 竣工年度
- 1997~1999
- 構造等
- 高層6~7階建・エレベータ有
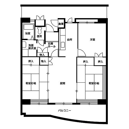
- 住戸面積
- 72.6~75.2㎡
- 間取り
- 3LDK
- 戸数
- 100戸
- 県営住宅に「礼金制度」はありません。
- 入居後、収入が基準を超過したり、収入報告をされない場合、近傍同種家賃(=近隣の民間住宅並み家賃)をお支払いいただきます。高額所得者に認定された場合は住宅を明け渡していただきます。

