概要
OUTLINE
- 住所
- 岩国市今津町2丁目3番20号
- 最寄り交通
- 川口バス停(上り)まで 徒歩3分(建物エントランスより190m)
- 学校区
- 市立麻里布小学校 / 市立麻里布中学校
- 駐車場
- 1戸に1台( 1,100円/月)
- 共益費
- 共用施設維持管理に必要な経費、自治会費
- 敷金
- 当初家賃の3ヶ月分
- 棟数
- 1棟
- 竣工年度
- 1994(H06)
- 構造等
- 高層耐火構造10階建・エレベータ有
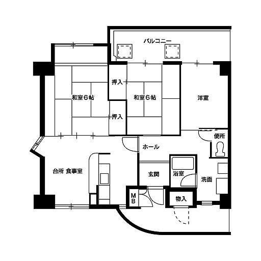
- 住戸面積
- 67.3㎡ 64.9㎡
- 間取り
- 3LDK 3LDK
- 戸数
- 16戸 16戸
- 家賃
- 23,000円~34,300円 22,200円~33,100円
- 県営住宅に「礼金制度」はありません。
- 入居後、収入が基準を超過したり、収入報告をされない場合、近傍同種家賃(=近隣の民間住宅並み家賃)をお支払いいただきます。高額所得者に認定された場合は住宅を明け渡していただきます。

