概要
OUTLINE
- 住所
- 下関市一の宮町4丁目15番 他
- 最寄り交通
- 一の宮県住前バス停まで徒歩1分~3分
(建物エントランスから20m~200m) - 学校区
- 市立熊野小学校 / 市立川中中学校
- 駐車場
- 1戸に1台まで(1,800円/月)
- 共益費
- 共用施設維持管理に必要な経費、自治会費
- 敷金
- 家賃の3ヶ月分
- 竣工年度
- 2001~2004
- 構造等
- 中耐 高層 3~10階建・エレベータ有
- 住戸面積
- 54.9㎡ 73.5㎡
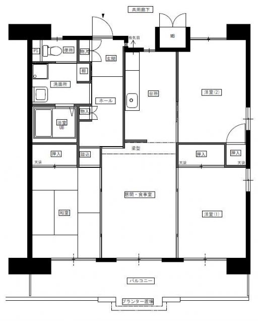
- 間取り
- 2DK 3LDK
- 戸数
- 209戸
- 県営住宅に「礼金制度」はありません。
- 入居後、収入が基準を超過したり、収入報告をされない場合、近傍同種家賃(=近隣の民間住宅並み家賃)をお支払いいただきます。高額所得者に認定された場合は住宅を明け渡していただきます。

